Мы используем куки-файлы. Соглашение об использовании

Продается 1-комн. квартира, 29,3 м²

Общая площадь29,3 м²
Жилая площадь16 м²
Площадь кухни6 м²
Этаж1 из 9
Год постройки1986
Код объекта: 2082869. Уникальное предложение на рынке недвижимости Абакана — однокомнатная квартира по адресу Торговая улица, 24. Этот объект идеально подойдёт молодым специалистам, которые ценят комфорт и удобство. Квартира расположена на первом этаже девятиэтажного кирпичного дома. Общая площадь — 29,3 кв. м. В квартире выполнен косметический ремонт, поэтому можно сразу заселиться и наслаждаться новым жильём. Совмещённый санузел обеспечивает функциональность и оптимизацию пространства. Преимущество квартиры — удачное расположение. Развитая инфраструктура района позволяет быстро добраться до основных транспортных магистралей и ключевых точек города. Рядом есть наземная парковка, что удобно для автовладельцев. Мы гарантируем безопасную сделку и юридическую поддержку нашим клиентам. Поможем одобрить ипотеку с сниженной ставкой. Не упустите шанс стать владельцем этой уютной квартиры — позвоните нам прямо сейчас!
Позвоните автору
Вам ответят на все вопросы

О квартире

Тип жилья

Вторичка

Общая площадь

29,3 м²

Жилая площадь

16 м²

Площадь кухни

6 м²

Санузел

1 совмещенный

Вид из окон

На улицу

Ремонт

Косметический

О доме

Год постройки

1986

Строительная серия

111-97

Количество лифтов

1 пассажирский

Тип дома

Монолитный

Тип перекрытий

Железобетонные

Подъезды

1

Парковка

Наземная

Отопление

Центральное

Аварийность

Нет

Спросите умного помощника
Получите экспертное мнение о жилье
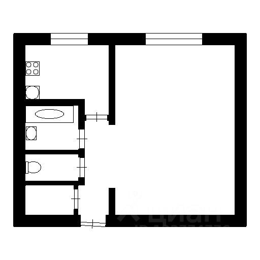
Планировка этой квартирыПо данным Циан
Планировка этой квартиры по данным Циан

Расположение

Ипотечный калькулятор
  • Базовая
  • Семейная
  • ИТ-ипотека
  • 20%
  • 30%
  • 40%
  • 50%
лет
  • 10 лет
  • 20 лет
  • 30 лет
Загружаем предложения от застройщика и банков
Зимой будет тепло
Дома такой же серии обычно хорошо сохраняют тепло
7
Помощь риелтора
Проверенный риелтор поможет купить или продать квартиру
3 600 000 ₽
Цена за метр
122 867 ₽/м²
Условия сделки
свободная продажа
Ипотека
возможна
Агентство недвижимости
Документы проверены
На Циан
менее года
Объектов в работе
163
Риелтор