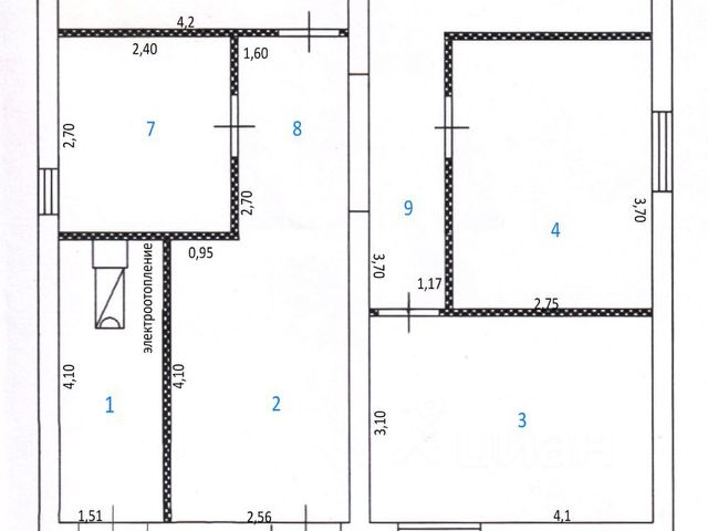
Прекрасный дом для проживания, сделан из блочного высококачественного арболита, двухэтажный, с большой мансардой. Расположен в живописном месте в 50-ти метрах от реки Ташеба.Чистый воздух. Глубина скважины 27 метров. Сдавал воду на анализы в лабораторию.Очень чистая и вкусная питьевая вода, практически родниковая. Теплый пол, производства Италии. Септик двойной, переливной. Окна и двери пластиковые Rehau, новые. Дом возведен под крышу в 2025 году. Земельный участок 12 соток, полностью огорожен обрезной доской, каркас забора - профильная труба. Все доски обработаны газовой горелкой и жидкостью от гнили. Высота забора 2 метра. Лицевая сторона забора изготовлена из листового металлопрофиля. Большие откатные ворота, с внутренним открыванием двери. На участке есть деревянный уличный туалет. Подведено электричество 15 киловатт. Снаружи дом оштукатурен. Вход на мансарду сбоку дома, по металлической лестнице, ступеньки из лиственницы. Необходимо сделать электропроводку и внутреннюю отделку. Общая площадь дома 123 кв.м. Площадь 1 этажа дома 77 кв.м., мансарды 46 кв.м. Дом состоит из двух спален 15,5 и 15,5 кв.м., кухня и зал объединены - 46 кв.м. Крыльцо 9 кв.м., бойлерная 2,1 кв.м. Участок с домом расположены в 20 км. от Абакана по Аскизскому тракту. Дом оформлен документально как жилой, введен в эксплуатацию в конце ноября 2025 года, получены правоустанавливающие документы. Торг уместен. Дом продаётся совместно с участком, все в собственности. Соседний участок 12 соток, общая граница, так же огорожен забором, обрезная доска, высотой два метра. Возможно и его продажа. Возможны варианты обмена на квартиру, студию в Абакане. На втором, соседнем земельном участке так же подключено электричество 15 киловатт. Продаю дом в республике Хакасия, кол-во спален: 2..




















































































