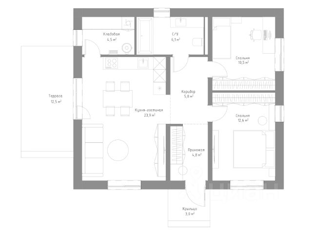
Прекрасный дом для вашей семьи: уют, комфорт и выгодная ипотека! Мечтаете о собственном доме, где хватит места для всех и каждый будет чувствовать себя комфортно? Тогда этот вариант точно для вас! Представляем вашему вниманию прекрасный дом площадью 132 м2, расположенный на участке в 6 соток. Здесь есть всё, что нужно для счастливой семейной жизни. Простор и функциональность: В доме три уютные спальни, где каждый член семьи сможет обустроить свое личное пространство. Сердце дома просторная кухня-гостиная, где можно собираться всей семьей за обедом, проводить вечера с друзьями или просто наслаждаться совместным времяпрепровождением. Удобство и практичность: Для автовладельцев предусмотрен гараж, который защитит ваш автомобиль от непогоды и позволит сэкономить место на участке. Участок в 6 соток это прекрасная возможность для обустройства зоны отдыха, сада или огорода. Здесь вы сможете воплотить любые свои идеи и создать уютное пространство для отдыха на свежем воздухе. Семейная ипотека ваш шанс на новую жизнь: Самое приятное этот дом подходит под семейную ипотеку 6%! Это значит, что вы сможете приобрести жилье своей мечты на выгодных условиях и с комфортным ежемесячным платежом. Не упустите свой шанс! Свяжитесь с нами прямо сейчас, чтобы узнать больше и записаться на просмотр. Ваш новый дом ждет вас! Продам дом в поселке Тепличный Усть-Абаканского района.


















































































